
秦皇島鵬翼智能科技有限公司
白金會員
已認證

攪拌設備的選型一直是一個比較基礎且難的課題,不僅需要充分了解物料自身的特性(包括物理與化學特性,例如粘度、稠度、固含、比重、腐蝕性等),同時需要了解混合或攪拌的目的(例如溶解、懸浮、聚合等),還需要了解不同攪拌器(推進式槳葉、斜槳葉、螺帶、乳化、分散)的工作原理以及優缺點。良好的攪拌器選型是工藝實現的基礎,“工欲善其事必先利其器”。

關于攪拌的一些概念和設備,我們簡單了解一下:
攪拌的目的
攪拌是以促進混合為主要目的,如進行固-液懸浮、液-液混合、氣-液分散、液-液分散和液-液乳化等;又往往是完成其它單元操作的必要手段,以促進傳熱、傳質、化學反應為主要目的,如對流體的加熱、冷卻、萃取、吸收、溶解、結晶、聚合等操作。

購買攪拌設備需要考慮因素
1. 物料品種:氣體,固體和液體;相狀態:液-液,固-液,固-固等七種;
2. 被混合物料之特性:流體的黏度,稠度,物料的密度或比重,腐蝕性等;
3. 物料數量;
4. 混合目的;
5. 攪拌混合過程的工藝要求或特點;
6. 各種攪拌器的特性分析研究,尤其是攪拌器可產生何種流場/流型 ;
7. 能耗或成本支出;
8. 其它方面等。
鵬翼智能
設備類型
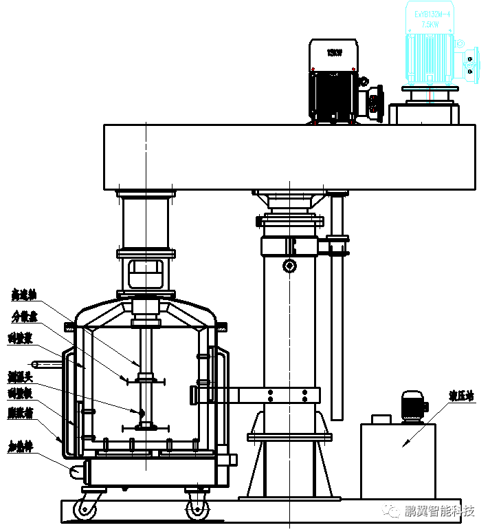
分散攪拌-同心雙軸攪拌機
同心雙軸攪拌機適用于較高粘度物料的分散和攪拌,高速分散軸和低速攪拌軸采用同心設計,同時對物料進行動態分散;攪拌軸上設計有用機械密封結構,在攪拌同時可對容器內物料進行真空抽泡處理。


該設備廣泛適用于化工、建材、電子、涂料、食品、制藥等行業,是進行液液或固液混合、分散、反應、均質的理想設備。鵬翼可根據客戶具體要求定制不同功能和規格的同心雙軸攪拌設備。

攪拌-雙行星攪拌機
對于非常有挑戰性(高黏度)的配方,可以使用雙行星式攪拌機。該設備具有兩個或多個葉片,它們能繞著各自的軸旋轉,同時也會繞著混合容器旋轉。

雙行星攪拌機工作過程中,兩支平行的攪拌槳按設定的固定旋轉比例運轉,沿攪拌桶公轉的同時亦快速自轉,同時攪拌桶內有隨公轉同步運轉的回旋刮板不停旋轉,使物料由攪拌桶內壁移動到攪拌槳附近,攪拌器的運轉方向與公轉可同向亦可逆向,達到不同剪切目的。另兩支單獨動力裝置的高速分散齒盤亦隨公轉一起沿攪拌桶內運轉,進行分散,乳化,高速分散齒盤為變頻調速,可根據生產工藝自定轉速。


此類運動方式可使物料在較短時間內達到完全均勻的乳化混合效果,特別適用于固固相、固液相、液液相的分散、混合。
鵬翼智能
量身定制
憑借擁有各種先進的加工設備,鵬翼可確保零件的后序穩定;經驗豐富的設計團隊,可根據客戶的需求,提供整廠的設計、生產線總包;提供售前、售中、售后服務;設備性價比穩居行業領先等多重競爭優勢。
最新動態
更多
虛擬號將在 秒后失效
使用微信掃碼撥號