
山東摩克立粉體技術設備有限公司

已認證
山東摩克立粉體技術設備有限公司
已認證
摘要:銅冶煉過程中產生的煙塵灰富含銅等有價金屬和其他有害元素,既一種有危害的固體廢棄物,也是可加以回收利用的資源。目前行業內采用的大多是濕法分離單種或多種有價值金屬,但濕法分離工藝復雜并產生大量廢水,成本過高且不利于環境保護。山東摩克立粉體技術設備有限公司采用干法分離技術,回收銅和其他元素,工藝結構簡單,設備占地小,結構布置靈活,前
后可連接其他工藝設備,不使用化學藥劑,解決了冶金粉塵的環保問題,降低了冶金粉塵回收利用的成本。本工藝可完全替
代濕法分離法或作為前端工藝降低之后濕法分離的工作量。
關鍵詞:白煙塵銅干法分離氣流分級粉體技術
1.發展現狀
銅冶煉生產過程中產生的煙塵灰往往富含銅等有價金屬和其它有害元素,既是一種有危害的固體廢棄物,也是一種可加以回收利用的資源。目前行業內采用的大多是濕法分離單種或多種有價值金屬,但濕法分離工藝復雜并產生大量廢水,成本過高且不利于環境保護。
山東摩克立粉體技術設備有限公司針對該問題做出優化設計,利用空氣動力學干法分離冶金粉塵中的不同物質,采用干法分離銅的技術,回收銅等有價元素及其他元素,回收工藝結構簡單可靠,設備占地小,結構布置靈活,前后可連接其他工藝設備,不使用化學藥劑,解決了冶金粉塵的環保問題,降低了冶金粉塵回收利用的成本。本工藝可完全替代濕法分離法或作為前端工藝降低之后濕法分離的工作量。
2.摩克立干法分離回收銅的氣力破碎與分級回收技術與工藝方法
2.1氣力破碎技術:經實驗分析,白煙塵分離銅與氧化銅可用圓盤氣流粉碎機對粉料粒度進行加工后進入氣流分級機,氣流分級機可按比重不同分離兩種物料,因此選用圓盤氣流粉碎+QF氣流分級串聯工藝。
圓盤型氣流粉碎機,是德國摩克立公司粉碎、分級技術的粉碎分級設備。工作原理是壓縮空氣經干燥過濾后,通過拉瓦爾噴嘴高速射入粉碎腔,在多股高壓氣流使物料被反復碰撞、摩擦、剪切而粉碎,粉碎后的物料在風機抽力作用下隨上升氣流運動到分級區,細粉在氣流帶動下進入旋風分離器收集,粗顆粒下降至粉碎區繼續粉碎,扁平化設計適用于本物料低粉碎、通過量大的要求。
2.2分級回收技術:QF型分級機,是引進德國摩克立公司分級機技術的新一代分級機,其特點是整機系統負壓運行,分級原理改變了傳統的旋風分級,而是增加了二次氣風柵裝置,提供均勻風量,使物料充分分散、上升,到達分級區,高效分級,從而使分級效率提高,產量增大,能耗降低。粒度采用變頻調節,調節范圍寬(100~6000目)。除塵器采用電脈沖除塵,整機結構緊湊,占地空間小;喂料和卸料加用氣錘,振動加、卸料;由于系統為負壓運行,使環境無粉塵,滿足環境指標要求。可與前工序設備對接,還可以多級串聯,分出不同的粒度段,更具經濟性,對易氧化物料可根據客戶要求,設備可留有充氮口及排放口,提供防氧化措施。
2.3工藝流程說明:
物料通過喂料器勻速進入氣流粉碎主機,調節氣源壓力達到主要粉碎白色煙灰,黑色氧化銅盡量保持大顆粒的效果。破碎掉大顆粒及團聚物的物料通過粉碎機進入氣流分級機,氣流分級機調節葉輪轉速可攔截比重較大的氧化銅粉末,回收最大部分的氧化銅,
比重輕的其他粉末可通過葉輪間隙進入旋風收集器,殘余粉塵由除塵器收集。整套系統電氣部分設計為一鍵啟動,自動化程度高,界面簡單易操作。
2.4技術指標:
2.4.1原料名稱:白煙塵;
2.4.2工藝要求:粉碎打散大顆粒,分離出氧化銅粉末;
2.4.3設備選型:根據產品細度及產量要求選用10立方圓盤型氣流粉碎主機+QF700氣流分級機;分級機功率:7.5KW;風機功率:37KW。
2.5物料經螺旋喂料器均勻進入圓盤磨打散,把絕大部分白煙塵中白霜和含銅化合物充分打散分離,在風機高壓抽力作用下進入分級機。分級主機在分級葉輪離心力作用下,達到要求的物料留在分級機,通過下料口出料,回收最大部分的氧化銅;
較輕白霜進入旋風收集器收集。在分級機下料口取料分析:觀察到含銅化合物與白霜分層效果明顯,白霜漂浮在上,含銅化合物比重較大沉在白霜下面,如圖一。在旋風收集器出料口取料分析:通過充分攪拌靜置后,物料下方呈現白色粉末狀,沒有分層現象,說明含銅化合物全部經分級機收集,沒有通過旋風收集器,效果明顯,如圖二。
圖一
圖二
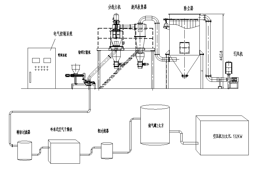
4、設備流程圖:
冶金粉塵由螺旋喂料均勻進入氣流打散粉碎機,大顆粒粉塵及團聚物會在氣流打散粉碎機內發生碰撞,粉塵中各種成分的硬度不同打散粉碎的程度也不同,增加之后的分離效率。
粉碎打散后的粉塵進入氣流分級機,利用各物料的比重不同調節分級輪轉速可將大比重物料攔截,其余物料則可以通過分級葉輪,按工藝要求進入二級分級機或進入旋風收集器。
將所需分離的物質分離出后,剩余的物料由旋風收集器收集,高效旋風收集器各部分尺寸比例優化,提高收集效率,最高可達99%以上的成品收集率,減少進入除塵器的粉塵,降低除塵工作量,延長除塵布袋壽命。
高效旋風收集器除塵器無法收集的少量粉塵由布袋除塵器收集,除塵器布袋材料可選用防靜電針刺氈,過濾效率高風阻小,脈沖儀自動控制脈沖除塵閥定時反吹清潔布袋,使除塵器風阻穩定工作正常。
經過除塵器過濾,引風機出口的空氣潔凈,符合國家標準,安全環保避免粉塵爆炸,不污染環境,工人工作環境干凈衛生,免除粉塵危害。
至此,白煙塵中的各種物質按比重從不同出料口收集完成,氣流打散分離流程結束。從分級機底部得到最大部分的氧化銅。完成了從白煙塵中分離出銅的工藝流程。
參考文獻:
1曹詩倜,顧鈺文,彭聯躍,冼金源.用H_(106)從氯化物溶液中萃取第四、五族元素的研究[J];湖南冶金;1981年01期
2羅禮慶,李振武.單效真空蒸發器處理硫酸銅母液的研究[J];重慶環境科學;1985年06期
3平田富士雄,丁國榮.玉野冶煉廠電解液凈化方法的改進[J];中國有色冶金;1986年05期
4成萬英.非晶態半導體的費米能級[J];山東大學學報(工學版);1989年04期
5鐘林.陽極銅溶解量的計算方法及其應用[J];有色金屬(冶煉部分);1994年05期
6鐘林.電解銅板面粒子的產生與防治[J];有色金屬(冶煉部分);1994年06期
7龍子平.貴冶電銅質量技術攻關的實踐[J];銅業工程;1994年03期
8吳繼烈.高雜質銅電解凈液方案探討[J];有色冶煉;1994年04期
9王紅衛,李慶成.石菉廠銅電解精煉過程中雜質的分布及對其控制的初探[J];有色冶煉;1994年05期
10聶仲文.高鉍陽極銅的電解精煉[J];有色冶煉;1995年05期
相關產品
更多
相關文章
更多
技術文章
2025-04-30技術文章
2025-04-30技術文章
2025-04-02技術文章
2025-03-31虛擬號將在 秒后失效
使用微信掃碼撥號