
常州北奇機械科技有限公司
3 年
金牌會員
金牌會員
已認證
撥打電話
獲取底價
提交后,商家將派代表為您專人服務

常州北奇機械科技有限公司
金牌會員
已認證
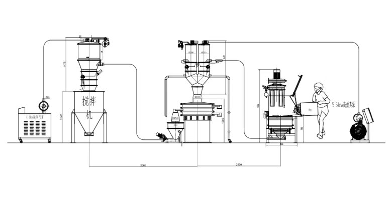
本公司主營機械設備的技術研發;粉體輸送、無塵投料站、注塑機及輔助設備、攪拌機、干燥機、粉碎機、上料機、集中供料系統設備及配件、塑料粒子、粉末、塑料制品的銷售及售后服務。服務注塑、擠出、吹塑、化工、食品、醫療等多個行業、粉體與顆粒的攪拌、輸送等,不僅僅關于塑料行業更涉及醫療,冶金,食品,化工等行業!





相關文章
更多
技術文章
2025-04-11技術文章
2025-02-26技術文章
2025-01-06技術文章
2025-01-06
虛擬號將在 秒后失效
使用微信掃碼撥號